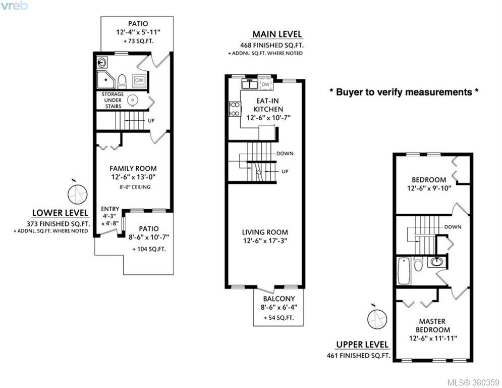
$380,000
#116 - 842 Brock Avenue
Sold
Features & amenities
- Level
- Private
- Serviced
- Heating Baseboard
- Water City/Munic.
Additional details
- MLS® # 380359
- Date Sold July 2017
- Type Residential
- Subtype Townhouse
Listing is presented by
Robin Cushing – Victoria YYJ Real Estate Services
Coldwell Banker Oceanside Real Estate